Bản vẽ Shopdrawing
Xây dựng từ hồ sơ bản vẽ thiết kế cùng với bản vẽ kiến trúc và các bản vẽ khác. Chúng tôi thực hiện thiết kế model phần khung kết cấu thép của tòa nhà và từng bước đến bản vẽ gia công hoàn thiện

Chúng tôi xây dựng model dựa trên bản vẽ thiết kế, bản vẽ tiêu chuẩn, quy chuẩn của dự án
Qua xây dựng mô hình và quản lý thông tin dự án. Chúng tôi sẽ phát hiện ra những điểm xung đột và xử lý, giải quyết các vấn đề khó khăn khi gia công và vận chuyển
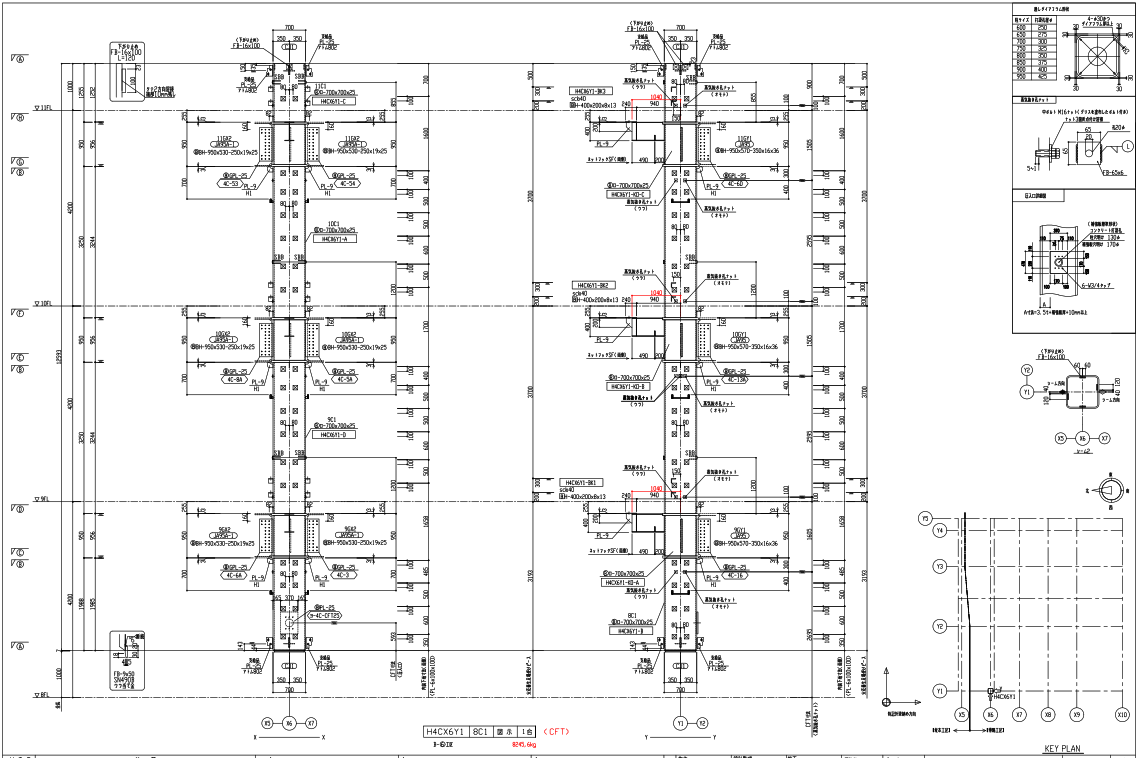
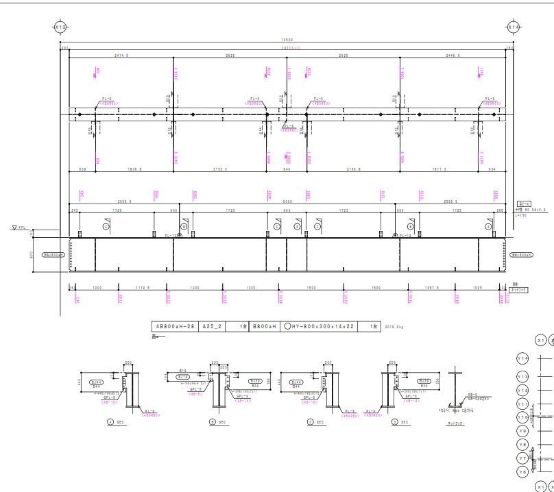
Bản vẽ gia công
Bản vẽ gia công thể hiện chi tiết từng cấu kiện của cột, dầm, xà gồ. Từ bản vẽ này có thể lắp ráp từng cấu kiện chính xác vị trí đảm bảo việc lắp đặt tổng thể công trình chính xác.


Bản vẽ gensun
Bản vẽ gia công thể hiện chi tiết từng cấu kiện của cột, dầm, xà gồ. Từ bản vẽ này có thể gia công từng cấu kiện chính xác vị trí đảm bảo việc lắp đặt tổng thể công trình chính xác.





